114060 Оферти3750 Агенции26780 Потребители

Продава Тристаен апартамент гр.София -Красна поляна 189000 EUR

РубрикаПродава
Вид на имотаТристаен апартамент
Квартал Красна поляна
Населено мястогр.София
Област:София
ДържаваBulgaria - BG
Цена / Валута
189000 EUR
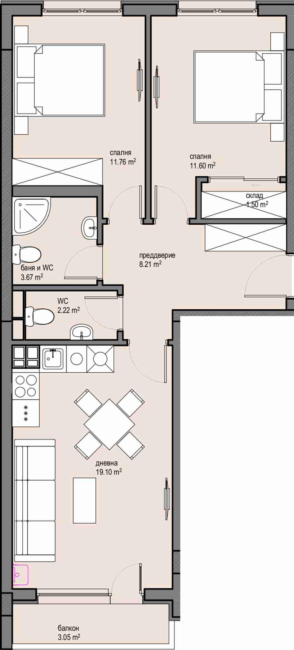
Площ84
Тип строителствоТухла
Етаж4
Етажност8
Описание:

ДИРЕКТНО ОТ ИНВЕСТИТОР! БЕЗ КОМИСИОН ОТ КУПУВАЧА! Етап на строителството - пред Акт Образец 15. Предлагаме на Вашето внимание сграда Красена. Един нов мащабен проект на строително-инвестиционна компания, насочена към създаването на жилищни сгради тип многофамилни къщи, които се отличават с функционалност, качество, луксозно изпълнение и оригинална архитектура. Квартал Красна Поляна е един от най-близко намиращите се районни до центъра на София. Сградата се намира точно срещу бъдещия нов квартал на София - Галакси , който ще се изгради на площ от 200 дка. Квартала ще е с ритейл център, разположен точно фронтално срещу сградата, в който ще са позиционирани Кауфланд, Практикер и Технополис, а в дълбочина ще е разположен жилищен квартал с офиси, хотел и детска градина с обща застроена площ от 700 000 м2. Предлагаме Ви тристаен апартамент в сградата. Съответно на етаж- 4 от 8. Обща площ 83.77 кв.м. нетна площ 73.68 кв.м. Изложение - изток/северозапад . Апартаментите се продават на шпакловка и замазка. Цената е с включено ДДС. Предлагаме БЕЗПЛАТНО СЪДЕЙСТВИЕ за одобрение и получаване на ипотечен кредит за покупка на този имот, при най-добри условия за Вас, чрез услугите на лицензиран кредитен консултант! Допълнителни услуги и следпродажбено обслужване - безкомисионно отдаване на имота под наем, строителни и ремонтни дейности, консултация и проекти с инжинерен дизайнер и ландшафтен архитект.
Номер на офертата1027706
Дата на посл. промянаThu Mar 05 2026
Брой посетители83
За контакти: Фирма: ЗАХИР - ВАЛЕНТИНА ПЪРВАНОВА
Държава: Bulgaria
Населено място: гр.София
Адрес: гр. София
Телефони за контакт: 0884932691
E-mail: v.purvanova12@gmail.com

https://