114096 Оферти3750 Агенции26780 Потребители

Продава Тристаен апартамент гр.София -Люлин 8 169000 EUR

РубрикаПродава
Вид на имотаТристаен апартамент
Квартал Люлин 8
Населено мястогр.София
Област:София
ДържаваBulgaria - BG
Цена / Валута
169000 EUR
Площ94
Тип строителствоТухла
Етаж5
Етажност6
Описание:

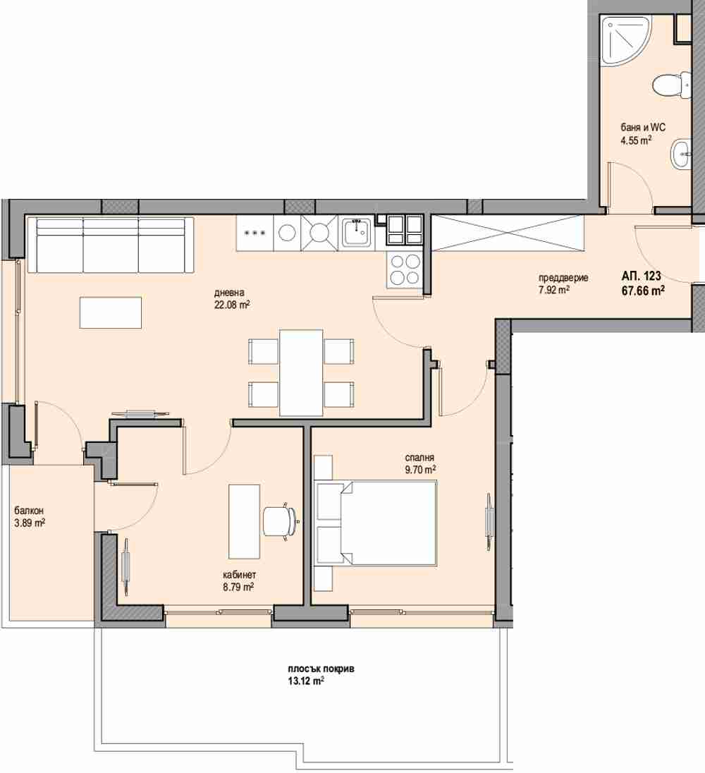
БЕЗ КОМИСИОН ОТ КУПУВАЧА! Етап на строителството - Акт Образец 14. Строително-инвестиционна компания ви представя един от най-новите проекти в гр. София - Сграда Second Avenue, където някой от свободните апартаменти може да се окаже вашето ново ’вкъщи’. Сградата се намира в един от най-големите жилищни квартали в София - Люлин, но предлага тиха и удобна локация в район с добре изградена транспортна инфрастуктура. Огромно преимущество е непосредствената близост до Метростанция Сливница - само на 150 м разстояние от нея. В сградата се предлагат, едностайни, двустайни и тристайни апартаменти. Предлагаме Ви маломерен тристаен апартамент в сградата, съответно на етаж - 5 от 6. Обща площ 81,22 кв.м. чиста площ 67.66 кв.м. Тераса:13,12 кв.м. Изложение- запад. Цената е с включено ДДС. Апартаментите се продават на шпакловка и замазка. Предлагаме БЕЗПЛАТНО СЪДЕЙСТВИЕ за одобрение и получаване на ипотечен кредит за покупка на имот при най-добри условия за Вас, чрез услугите на лицензиран кредитен консултант! Допълнителни услуги и следпродажбено обслужване - безкомисионно отдаване на имота под наем, строителни и ремонтни дейности, консултация и проекти с инжинерен дизайнер и ландшафтен архитект.
Номер на офертата1027712
Дата на посл. промянаThu Mar 05 2026
Брой посетители97
За контакти: Фирма: ЗАХИР - ВАЛЕНТИНА ПЪРВАНОВА
Държава: Bulgaria
Населено място: гр.София
Адрес: гр. София
Телефони за контакт: 0884932691
E-mail: v.purvanova12@gmail.com

https://