111462 Оферти3750 Агенции26808 Потребители

Продава Тристаен апартамент гр.Варна -Окр.болница 250000 EUR

РубрикаПродава
Вид на имотаТристаен апартамент
Квартал Окр.болница
Населено мястогр.Варна
Област:Варна
ДържаваBulgaria - BG
Цена / Валута
250000 EUR
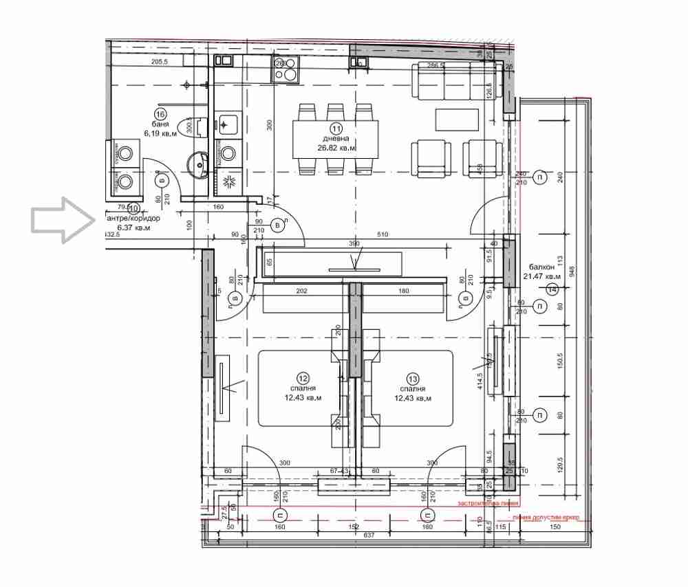
Площ116
Тип строителствоТухла
Етаж3
Етажност7
Описание:

САМО ОТ 'ЕЛИЗ ДОМ'! Предлагаме на вашето внимание ексклузивно от собственик, просторен и слънчев тристаен апартамент в модерна жилищна сграда пред Акт 16. ✔ Отлична локация на сградата в близост до Окръжна болница и супермаркет Лидъл, на пешеходно разстояние от Морската градина и центъра на Варна! Апартаментът е разположен на 3-ти от общо 7 етажа, с обща площ 116 кв.м (жилищна площ 98.87кв.м). Състои се от дневен тракт, две спални, баня с тоалет, килер, антре и голяма тераса пред всички стаи. Предлага се завършен по БДС. Имотът е светъл, топъл и тих, с благоприятно изложение към югоизток и югозапад. Въвеждане в експлоатация на сградата се очаква през юни 2026г. Чудесно предложение за собствен дом или имот с висок потенциал за отдаване под наем! 'Елиз дом' предлага безплатна консултация и съдействие за кредитиране при закупуване на недвижим имот, гарантирано добри условия! Още предложения от 'ЕЛИЗ ДОМ' можете да разгледате на www.eliz-dom.com
Номер на офертата1028099
Дата на посл. промянаTue Apr 21 2026
Брой посетители19
За контакти: Фирма: ЕЛИЗ ДОМ ЕООД
Държава: Bulgaria
Населено място: гр.Варна
Адрес: бул. Княз Борис I, № 42, ет.1
Телефони за контакт: 052643423; 0888966770
E-mail: office@eliz-dom.com

https://eliz-dom.portalre.net