114096 Ofertas3750 Agencias26738 Usuarios

Ventas Apartamento de dos habitaciones gr.Plovdiv -Smirnenski 210900 EUR

RúbricaVentas
Tipo del bien inmuebleApartamento de dos habitaciones
Barrio Smirnenski
Localidadgr.Plovdiv
ProvinciaPlovdiv
PaisBulgaria - BG
Precio / Divisa
210900 EUR
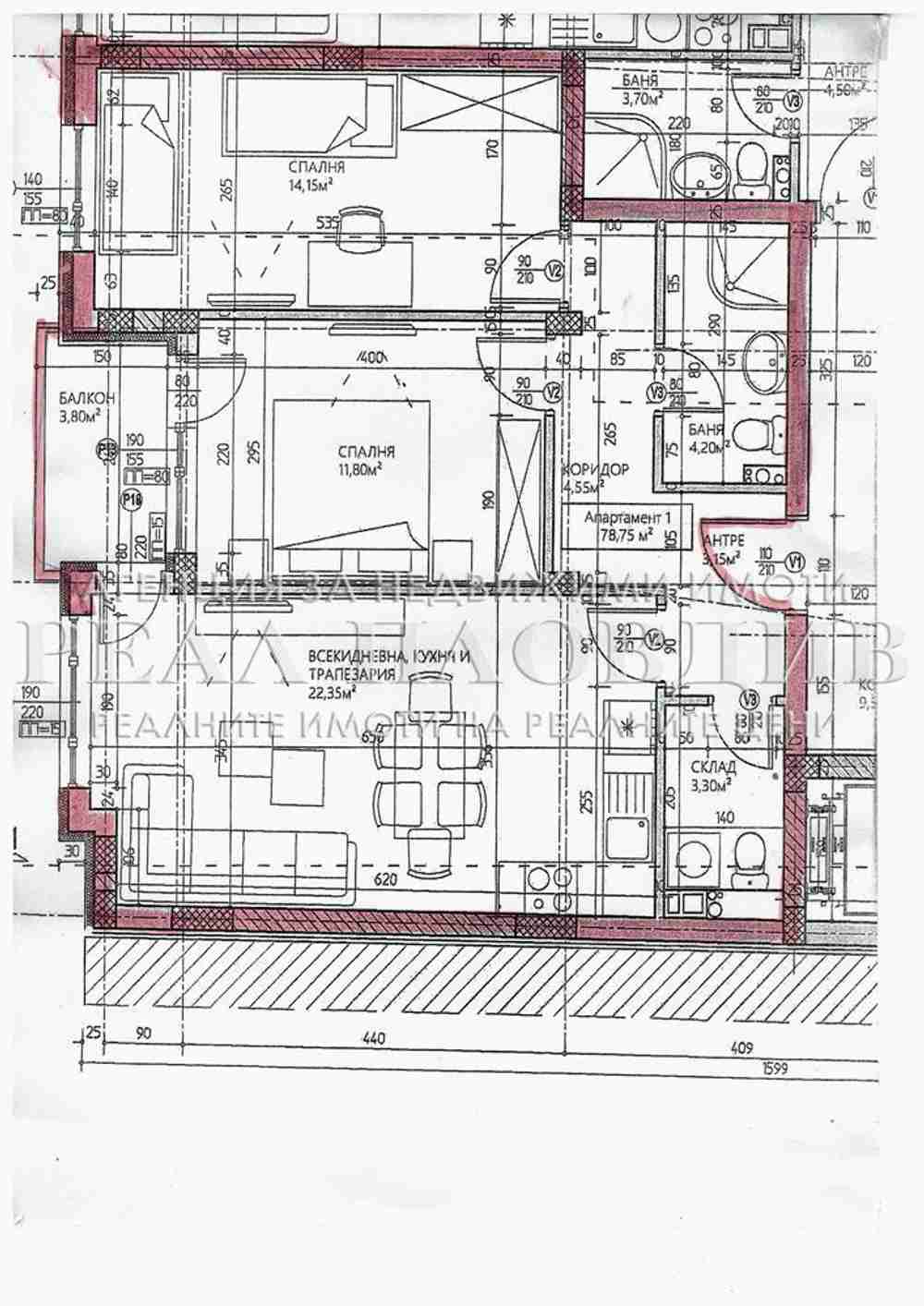
Superficie95
Tipo de construcciónLadrillos
Piso2
Pisoss en total6
Descripción:

Oferta №1027313
Fecha de última modificaciónFri Jan 23 2026
Numero de visitantes78
Para contactar: Empresa: РЕАЛ ПЛОВДИВ
Pais: Bulgaria
Localidad: гр.Пловдив
Dirección: Ул. Ангел Кънчев 8 / Четвъртък пазар
Teléfonos de contacto: 0878955394
E-mail: kmetova@abv.bg

https://realpd.portalre.net